Het lokale liberale geluid in de afgelopen jaren.
De VVD is al decennialang aanwezig in de gemeenteraad van Tytsjerksteradiel. De VVD, de Vereniging voor Vrijheid en Democratie, is een liberale partij. De raadsleden behandelen de onderwerpen vanuit een liberaal oogpunt. Maar wat houdt dit ‘lokale liberale geluid’ in? Hier enkele voorbeelden uit de raadsperiode 2022-2026.
Goede dienstverlening voor inwoners en ondernemers.
De VVD-fractie is van mening dat de gemeente er voor haar inwoners is en niet andersom. Regelmatig ontvangen wij signalen van inwoners, ondernemers of instanties dat zij tegen een muur lopen bij de bestuurlijke of ambtelijke behandeling van trajecten. Wij brengen dan de betrokkenen in contact met de juiste contactpersoon of we proberen e.e.a. vlot te trekken binnen of buiten de raadsvergaderingen om.
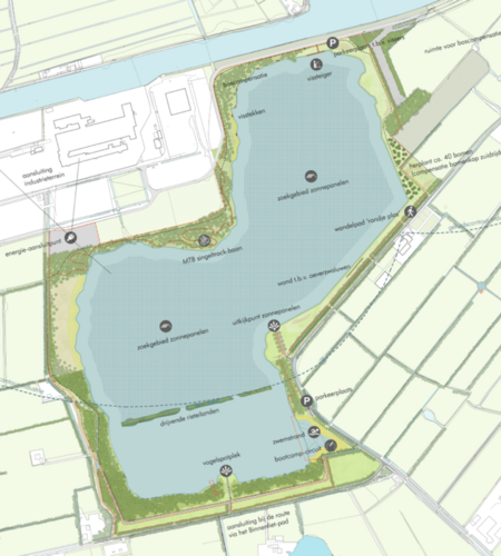
Niet investeren als ondernemer in een zonnepark.
Het college van B&W stelde in juli 2025 voor dat de gemeente voor 6,9 miljoen euro ging investeren in zonnepark Skûlenboarch. Private investeerders hadden afgehaakt, ze zagen er geen brood meer in en zij hebben hun aandeel aangeboden bij de gemeente. De VVD is principieel van mening dat dit geen taak is van een gemeente. We zijn opgericht om gemeenschappelijke taken uit te voeren voor onze inwoners en ondernemers. We hoeven ons niet te profileren als ondernemer. Wij hoeven geen leverancier te zijn van energie op de energiemarkt. Een ambtenaar is geen ondernemer. De VVD heeft tegengestemd tegen dit voorstel. Omdat een meerderheid van CDA, PVDA/GroenLinks, ChristenUnie en D66 voorstemde, kon dit project doorgang vinden.
Geen symboolpolitiek.
Kenmerkend voor de inzet van de VVD-fractie in periode 2022-2026 is de afkeer van 'symboolpolitiek.' Wat bedoelen we hiermee? Als raadslid moeten wij elke maand stemmen over de voorstellen die het college van B&W doet en soms ook over moties van andere fracties. "Sommige van deze voorstellen of moties zijn in onze ogen alleen om een vinkje te kunnen zetten of "voor de bühne." De voorstellen/moties zullen niet tot de gewenste veranderingen in de samenleving leiden. Dat noemen wij 'symboolpolitiek.' Voorbeelden hiervan in de afgelopen raadsperiode, waar de VVD een duidelijk standpunt innam zijn het inclusie- en regenboogbeleid en de situatie in Gaza. Zie hieronder.
Inclusie- en regenboogbeleid
Artikel 1 van onze Grondwet is heel duidelijk: iedereen hoort erbij en discrimineren is verboden. Toch vond het college het belangrijk om hier extra gemeentelijk beleid rondom te formuleren. Dit beleid heeft €105.000 gekost. Geld dat besteed is aan o.a. 'inhuur van expertise, ambtelijke capaciteit en een subsidie voor het beste idee van Tytsjerksteradiel.' Wij vragen ons sterk af: "wat levert dit nou daadwerkelijk op voor meer inclusie in onze gemeente?" Het antwoord is: "Niets. Na eenmalige sympathieke projecten (zoals een dorpstuin in Sumar) verandert er niets blijvends op het gebied van discriminatie of voor mensen met fysieke een beperking." Daarom zullen wij ook in de toekomst uiterst kritisch blijven bij dit soort projecten en tegenvoorstellen doen: "Geef die €105.000 niet uit aan mooie rapporten en eenmalige projecten, maar maak de gemeentelijke gebouwen bijvoorbeeld rolstoelvriendelijker." "Daar hebben we meer aan!"
Moties over buitenlandse kwesties, zoals de situatie in Gaza
Hoewel de situatie in Gaza een heel belangrijke kwestie is, gaan we hier als gemeenteraad niet over. Als we over zulke situaties gaan stemmen, dan kan dat verkeerde verwachtingen wekken.
Het voorstel om de bibliotheekorganisatie te wijzigen
Op basis van ontevredenheid over de huidige aanbieder (dBieb/BMF) werd door het college onderzocht of het mogelijk was om over te stappen naar een andere aanbieder (BNF) voor het bibliotheekwerk. Een overstap was mogelijk, maar de overstapkosten konden oplopen tot meer dan €700.000. Geld wat niet aan inwoners of boeken besteed zou worden. De meeste partijen wilden overstappen op basis van het heersende sentiment. Tijdens de raadsvergadering van oktober 2024 waren de VVD en D66 het niet eens met het voorstel van het college van B&W. Volgens onze fractie moet een keuze altijd gemaakt worden op basis van feiten: krijgen we een betere dienstverlening? Nee. Kost het veel onnodig geld? Ja. Dan moeten we het niet doen. Sentiment is een slechte raadgever.
Het voorstel om als gemeente te investeren in een drijvend zonnepark bij Schuilenburg.
De meeste partijen in de gemeenteraad (PvdA/GroenlLinks, CDA, CU) willen zich koste wat kost profileren als 'duurzaam.' Zo ook bij het besluit om als gemeente voor bijna €7 miljoen te investeren in het drijvende zonnepark bij de voormalige zandwinput van Skûlenboarch. Een investering met ontzettende grote financiële risico's en waarbij de gemeente als leverancier van zonnestroom een directe concurrent wordt van inwoners en bedrijven die ook stroom leveren. Totaal onverstandig, vindt onze fractie. Wij zijn niet tegen de verduurzaming, maar wel op een realistische manier. Dit is onnodig gokken met gemeenschapsgeld. Geld wat we hierdoor niet kunnen investeren in andere gemeentelijke projecten. Zie ook: https://www.rtvnof.nl/ingezonden-verblind-door-groene-ambities/713751/
Meer urgentie op woondossier.
Nadat de vorige verkiezingen waren gehouden, is de raad aan de slag gegaan met een raadsprogramma. Vrijwel alle fracties vonden het woningdossier urgent. Het college werd gevraagd om te komen met een actie-/crisisplan Bouwen en wonen. Ondanks de oplevering na 9 maanden, was het stuk niet naar wens. Er zijn door de jaren heen wel een aantal projecten tot bloei gekomen, maar de VVD is nog steeds niet tevreden. Voor en achter de schermen vragen wij met regelmaat om meer urgentie op dit dossier. Iedereen moet de rol pakken, die hem toekomt. Wij vinden het topprioriteit dat er betaalbare woningen komen voor onze jeugd. Maar ook moeten voldoende mogelijkheden zijn om te kunnen doorstromen voor ouderen. Er moet meer beweging in de woningmarkt.
Tegen realisatie van vergistingsinstallaties op het terrein van Sonac.
De VVD vindt het altijd prettig dat een ondernemer zich kan bezighouden met ondernemen. Ook vinden we het belangrijk dat de één de ander geen overlast bezorgt. Soms botsen deze twee thema’s. Dat zien we ook terug bij Sonac. Een grote groep van inwoners heeft vrijwel dagelijks hinder van de geuremissies bij Sonac. Wij vinden het gepast dat de geuremissies ieder jaar worden teruggebracht dankzij de best beschikbare technieken. Nieuwe activiteiten met vergistingsinstallaties op het terrein van Sonac vinden wij geen goed idee. De eigenaar wil de geurruimte weer gebruiken voor nieuwe activiteiten. Wij vinden het passend dat de geurcirkels uit 2006 worden aangepast naar een hoger ambitieniveau.
Financiën van de gemeente op orde is in het belang van onze inwoners,
De VVD-fractie hamert al jaren op het in evenwicht brengen van inkomsten en uitgaven van de gemeente. Ons motto: er kan niet meer worden uitgegeven, dan er binnenkomt. Het op orde brengen van de financiën is geen doel op zich, maar is belangrijk om ervoor te zorgen dat er ook in de toekomst voldoende budget beschikbaar is voor voorzieningen. Het verwondert ons vaak dat andere fracties ons “súnich” vinden omdat wij altijd kritisch zijn bij grote uitgaven. Waar voor de één het gemeenschapsgeld makkelijk uitgeeft, daar probeert de VVD-fractie vaak op de rem te trappen als het gaat om uitgaven. Wij hebben vaak geageerd tegen een extra tussentijdse verhoging van de OZB. Wij willen de lasten voor inwoners niet te snel laten stijgen.
Verder als zelfstandige gemeente.
In 2014 gingen de gemeenten Achtkarspelen en Tytsjerksteradiel een ambtelijke fusie aan. De ambtenaren werkten vanuit de werkmaatschappij voor twee gemeenten. We zagen dat dit niet altijd tot de gewenste efficiency leidde. Ook was de medewerkerstevredenheid laag. De VVD vindt dat de gemeente er moet zijn voor haar inwoners en dichtbij haar inwoners moet staan. Wij vinden dat onze inwoners en ondernemers de beste dienstverlening moeten ontvangen tegen een acceptabele prijs. Wij hebben daarom destijds ingestemd met het beëindigen van de ambtelijke fusie. Er heerst weer blijdschap in de organisatie. Wij verwachten dat de medewerkerstevredenheid toeneemt en dat dit ten goede komt aan onze inwoners.
Papierinzameling de komende 10 jaar behouden voor de verenigingen.
Het college van B&W stelde in 2025 voor om de papierinzameling door verenigingen, stichtingen en scholen te beëindigen en dit zelf uit te voeren. Dit moest helpen om de inzamelingsgraad te verhogen. Wij vonden dat deze activiteit moest blijven behouden. Daarin waren we duidelijk bij de opiniërende behandeling. De fracties konden toen meegaan in onze motivatie om dit de komende 10 jaar zo te laten. Tijdens de besluitvormende behandeling had het college nagelaten om de periode van 10 jaar niet op te nemen in de stukken. Middels een amendement en steun van de rest van de raad hebben we toch weer weten te realiseren dat de papierinzameling de komende 10 jaar blijft bij de verenigingen, stichtingen en scholen. Zij hebben de inkomsten hard nodig.











